目次
どうも。物件マニアです。

すごくどうでもいい情報なんですが、私すごい物件巡りが好きなんですよね。
「新しく家を建てるから参考にしたい!」とか「勉強したい!!」とか、そんな高尚な考えではなく単に見るのが好きという、業者側からすると、はた迷惑な感じで申し訳ありません。
今回気になったのが【同敷地内に完全二世帯・一部共有二世帯・完全同居型二世帯住宅が混在する】という物件。
同じ敷地に、形の違う二世帯住宅がフルバージョンで建つという、熊本でも初めてではないか??というくらい珍しい案件です!
しかし、完全独立とはいえ、二世帯住宅=同居ですから。そこは、ぶっちゃけなかなかですね!!!!!
嫁の立場からしてもそうですし、姑の立場からしても難しい選択肢ではないかと勝手に思っておりましたが。
「こういう手もあったのか!」と目からウロコな感じでした!
まずは五瀬社長に聞いてみた。

今回、施工した会社は【五瀬建築工房】さん。で、五瀬社長にぶっちゃけ聞いてみたんですよ。

ムトー
手刻み工法のラストエイジと言われている五瀬社長のとこでも、結構難しかった案件じゃなかったんですか?

五瀬社長
う~~ん。いや図面ひかしたとはお施工主さんですけんね。

ムトー
えっ?そんな融通ききます??

五瀬社長
融通っていうか。まあ一級建築士だしね。お施主さん。で、元から友達やったけんですよ。でないと普通は無理です!!

五瀬社長
今回の家は「ZEH(ゼッチ)」の家にしたので、安全性や環境に配慮という点をベースに置きながら、異なる二世帯住宅を2棟って感じやったけんですね。
まあやっぱり思い出深い現場にはなりました。

五瀬社長
まあそれでも、かなりのレア案件だったけんですね。図面を見てお互い「こうしたほうがよかっじゃなかろうか」ては言いましたよね。
こうしたほうがいい??
お施主様
いや最初は、完全同居で図面ひいとったんばってんね!

ムトー
突然のメガネ
お施主様
顔出しNGなんで…せめて分身のメガネで。いやむしろメガネが本体だと思ってくれれば。

ムトー
わかりました。その辺空気読みます。

ムトー
で。5家族同居って凄いっすね。実両親でも正直悩むとこだと思うんですが、義理両親もってことですよね?もう私には無理です。
![]()
お施主様
そうっすね。自分たち夫婦と子供。で、嫁のお母さん(義母)。俺の両親(実父母)俺の弟家族(弟、弟嫁、弟子供)あとは実母の兄弟(叔父)で。もちろん互いのプライバシーに配慮しながら設計は考えてたとばってんね。
![]()
お施主様
で、図面見ながら五瀬くんが言ってこらしたとが、「このままじゃお前の家族が幸せに暮らしていけるとは思えない」。

ムトー
深い。実に深すぎて、一発じゃ理解できない金言ですね。
![]()
お施主様
まあ家族構成を考えてってことばってんね。
俺の子供は男の子。弟の子供は娘。
で、俺たちの代まではええばってんね。やっぱ子供の代になった時の事を考えとらんかったけん。
![]()
お施工主様
将来、俺たちが亡くなったあとにひょっとしたら売りに出すかもしれん。もしくは賃貸として利用すっかもしれん。
そん時に一緒やったら絶対揉める。
だけん境界線をキチンとひいて。別棟にして名義も分けとかんと。
子供に迷惑ばかけるなら意味がないけんですね。
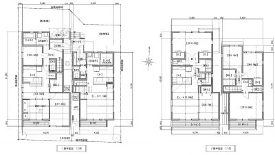
そしてやり直した完成図がこちら


黒い建物がお施主様ご家族。白い建物が弟さんやご両親が住む建物に。と完全二世帯住宅としてまず分離。
それでも、まだ同じ建物の中で世帯が違うご家族が同居されていますが。
つまり
同じ敷地に、「完全分離型二世帯住宅」と「一部共有二世帯住宅」と「完全同居二世帯住宅」が混在してるってことですよね!?もう軽くパニックです。
![]()
お施主様
こっからですよ。一部共有にすっとか、完全同居か完全分離かて悩んで。まあ見たが早やー。
では早速、お宅訪問!!
まずはお施主様ご夫妻、お子様プラス奥様の実母という完全同居型から。

玄関入ってすぐに、後光がさしてました。なにこの天孫降臨な感じ。すごい神々しい。
![]()
お施主様
これ取り壊す前の和室にあった欄間を再利用したとよね。まあペイントはしたばってんね。

洗面台のタイルはご家族で決められた思い出たっぷりのカラー。
続いてリビング


見せ梁や造作家具も、落ち着いたブラウンで統一。

床材は無垢のオーク材。私は傷が入ることにひるみすぎて、二の足を踏んでたのですが
![]()
お施主様
傷云々ば考えるなら、無垢はやめたがええよ。俺は子供がおもちゃ投げて傷くらおうが、それが我が家の勲章っていうか歴史て感じるタイプやけん。


階段下のデッドスペースを有効活用し、書斎に。階段は段差を利用して収納庫も完備されていました。
階段の段差は、お母さんの足腰の負担を和らげるために、少し低く設計されていました。

ムトー
ご年配の方にも、最近の体重増加で膝に負担がきている私にも優しい階段!
続いて2階へ

優しい階段を上ると、まさかの隠し階段出現!!!!

一瞬で脳内はこのコマンド。
もちろん「たたかう」で!!勢いよく上りました!

まさかの屋根裏!!!その広さ14畳!!!!!

ムトー
夫婦喧嘩したときに活用したい。しかし旦那が先に逃げ込んだら確実にハシゴを破壊し脱出不可能にしてしまいそうだ。
完全同居に迷いはなかった?
![]()
お施主様
ですね。我が家は「完全同居型」。迷いはせんやったよね。
![]()
お施主様
嫁の母ちゃんばってん、もう俺の母ちゃんて思っとるしね。家建てる前から俺は同居しとったし。

1階にお客様が来られたときお母さんが気を使われないように、2階にミニキッチンが設けてありました。
ちょっとしたことですが、こういった気遣いがあってこその同居なんだろうなって感じました。
隣は一部共有の二世帯住宅
お次は弟さんご家族+実父母+叔父が住むお宅へ


こちらも同じく、段差を利用しての収納スペースを確保。

広々としたLDKに現れた和室。リビングと隣続きの和室は珍しくはないけれども。

ムトー
!!!なんか畳に穴の開いとっですよ!?
![]()
お施主様
お茶の自営ばしよるけん。その茶室です。

使わないときは、そっと穴も隠せるので、小さいお孫さんがいても安心です。
そのほか、奥様がピアノ教室をされているので、完全防音のピアノ部屋も完備されていました!
こちらは、1階部分が実父母+叔父。2階が弟さんご家族とテリトリーを分けての設計。お風呂と玄関以外は完全に独立型でしたので、互いのプライバシーは守れつつも程よい距離感。
震災後、建築の現場から見えてきたこと

高齢者向けの住宅ローンもあるが浸透しない

五瀬社長
やっぱり震災前と後とは全然違いますよね。今回のお施工主さんのとこは震災前から建てる予定はしとったけど。まあ納期も遅れが生じましたし、今までならチーム五瀬として、他の現場とは併用せんでやっとたとですけどね。
そがんも言うとられん。
今までなら「家ば建てる」ってなったら、やっぱりお施主さんも楽しみって気持ちが強かったんですよ。
けど、今回震災で、やっぱご高齢の方なんかはね。
「今更ローンも組めん」ってなりますもんね。けど家は全壊。住むところば落ち着かせなんけど、予算がない。そういう打ち合わせというかご相談が多かです。

ムトー
分かります。そういった方はどうしたらいいんですかね。

五瀬社長
もうできるしこ相談に乗りますよ。銀行にだって一緒に行って交渉もする。フラット35なら、災害復興住宅融資でも「高齢者向け」っていう制度もあっとですよ。

ムトー
高齢者向け??

五瀬社長
そう。たいがい家を建てる、建てなおすっていうと大金が動くから住宅ローンを組む人が多いでしょう?
でもローンは返済年月と年齢制限がある。(申し込みをする銀行や機関によって違いますが、大体75歳~80歳までに完済をすることが上限)
どうしても、年齢制限なんかでひっかかってしまう場合でも、高齢者向けで申し込みをすることができる。

ムトー
うーーん。よく分かりませんが、例えば名義人が他界した場合、通常の住宅ローンだと残債がチャラになるでしょ?
高齢者向けのローンもそんな感じなんですかね。

五瀬社長
チャラにはなりますけどね。条件があります。
契約者が亡くなった場合、建てた家や土地を売りに出して、残りのローンに充てるという方法になっとですよ。
売却したお金で一括返済するんですが、金額が足りなくてローンの完済に至らなくても、差額分の請求は入らないです。
ただし申し込み人がご主人で、まだ同居してる奥様がいたとしても、売却せなんです。だけん難しい。
残された家族に財産として残せないし、奥さんが次住むところも探さんといかん。
そこば回避するために共有名義にしたほうが安心ですね。
とにかく気軽に相談だけはしてほしい。

ムトー
相談って言っても。予算というか資金もないのに、相談するのってかなりの勇気が必要です。

五瀬社長
本当、家の事は簡単にフローチャートでイエス・ノーってできるほど簡単な事じゃないけんですね。だからこそ一人で悩まずに専門職に気軽に相談してきて欲しいですよね。
そこで他人だからこそ見えてくる方法もあっかもしれんですし。1人で悩んどるのが一番いかん。
今回みたいに、二世帯住宅でもいろんな方法もありますけん。

ムトー
ですね!!今日は本当にありがとうございました!!!!
まとめ

お施主様にインタビューをしていると、なんでわざわざ二世帯住宅?という疑問が少なくなってきている自分がいました。
「特に何か理由があるから二世帯という訳ではない。」
「自分が長男だから土地を守らなければいけないなんて思っていない。」
「弟と2人で協力していけばいい。」
ごくごく自然に皆が集まる場所、そこが我が家だから。とおっしゃっていたのが印象的でした。
色んな方向性があっていい。そこに合わせて建物を造る。
デザイン性にあふれた住宅は多くありますが、建物に家族を合わせるのではなく
家族に合わせた建物を造る。そんなシンプルだけれども、一番大事な事を考えられた素敵なご自宅でした!!
五瀬建築工房(クリックするとHPに飛びます)

ライター紹介
ムトー
肥後ジャーナル編集長。 「人はなんで痩せなきゃいけないのかな」という思考にまで達したのでもうきっと痩せません。 気にしません。
ヒゴナルマッチングとは、肥後ジャーナルの媒体を活かして、熊本で自分に合う仕事を探している求職者と求人活動をしている企業の情報をそれぞれ集め、お互いに明確なメリットがあるお仕事探しができる人材情報サービスです。



記事シェア